QUICK SKETCH DESIGN LAYOUT SERVICE

Obtain a professional sketch plan from award winning Architect Anna Vaughan.

Buying a property that needs some work?

Obtain a quick sketch plan proposal to see if it will meet your development goals

Optimise northern orientation

Can floor plan be adapted to better respond to the site?

Looking to maximise space ? Aiming for 3 bedrooms within a 2 bedroom budget?

Selling a property with unrealised potential?

Prepare a layout for future home improvements to help potential purchasers visualise potential. 

Marketing material to assist with driving maximum sale price.

Benefits

An Architect designed concept for a fraction of the price of full engagement. Utilise an Architect’s planning experience on what may be supported by Council or CDC approval

Maximise your sale/purchase budget return. Presentation of a home that can be altered rather than knock down rebuild to extend appeal to a wider market.

Existing

Step 1
Book a sketch design service
We send you a briefing document to complete
Send us a copy of your floor plan (a real estate plan is ok)

Step 2
Within 3 days 
We send you a CAD proposed floor plan
Provide us with feedback
 
Step 3
Within a week of booking
We amend the initial concept based upon your feedback 

Further consultation options
Book a virtual consultation with Anna Vaughan if you have further questions or want to understand next steps for your renovation.

Quick sketch design process

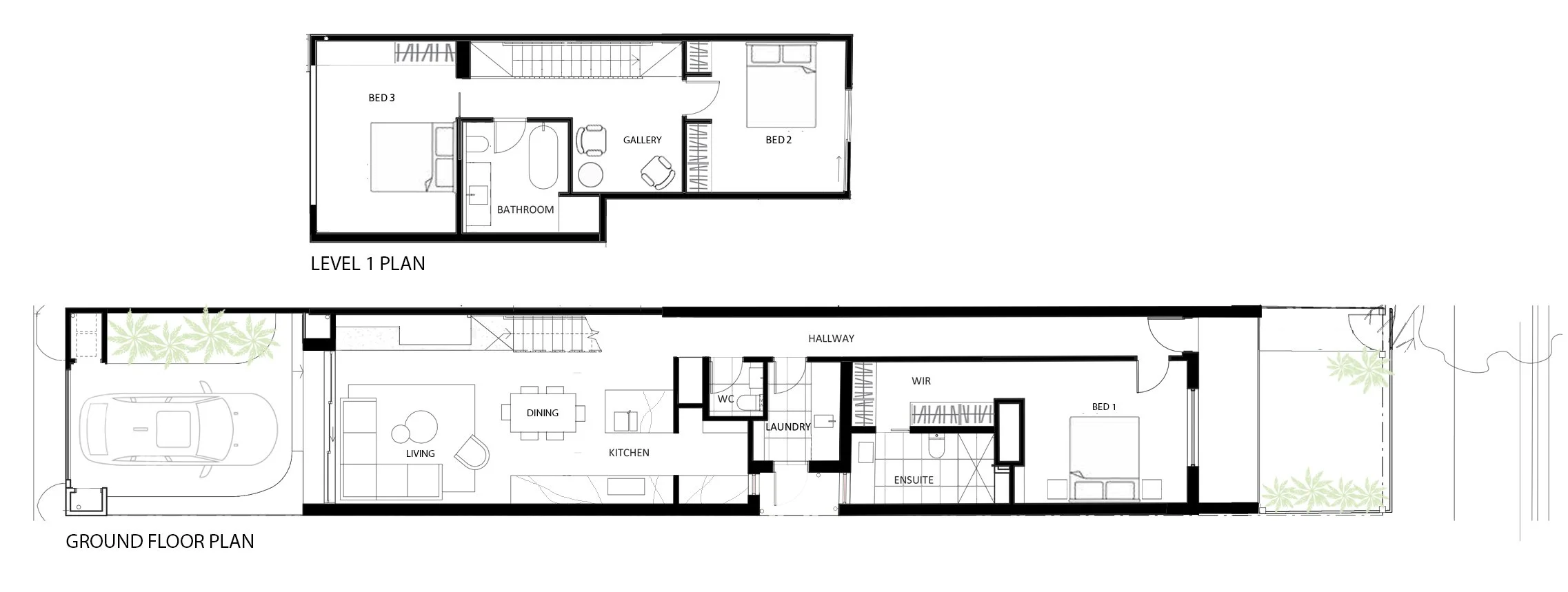
Example 2 bedroom townhouse > 3 bedroom townhouse

Existing plan

Proposed AVA sketch layout

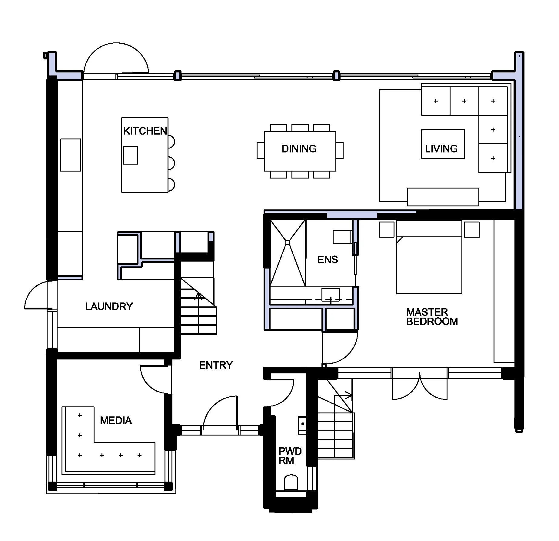
Example 2-3 bedroom house replanned

Existing plan

Proposed AVA sketch layout

Example 3+ bedroom house replanned

Existing plan

Example Additional level to an existing home

Proposed AVA sketch layout

Existing plan

Proposed AVA sketch layout

Price Structure

Apartment floor plan $ 1,900

2-3 Bedroom house plan $ 3,300

3+ Bedroom house plan $ 4,900

Additional level to an existing home $ 4,900

Option further virtual consultation with Anna Vaughan

1/2 hour $275

1 hour $500

Fees incl GST. AVA Terms and Conditions apply

Existing plan

Existing plan

Existing plan

Proposed AVA sketch layout