PLAN REVIEW SERVICE

Obtain a professional plan review from award winning Architect Anna Vaughan

. Have a set of house plans and not sure if it’s quite right?

. Have a Builder’s plan and like a second opinion?

. Has the interior design been carefully considered?

Avoid

X inefficient use of space

X clumsy planning that has poor flow

X disregard for site orientation with thoughtless door and window placement

X excessive circulation space

X spaces that are too small (often due to misleading furniture layouts)

X spaces that are too large, costing you money, with no benefit

X layouts that don’t consider interior design: storage and joinery placement

X awkward internal wall and door placement

X disregard for placement of unsightly and noisy services

   (water tanks, pool pumps, air-conditioning units)

 

Achieve

. maximise the efficiency of your space

. a floor plan that is functional and will drive optimum aesthetic outcome

. maximise your investment

. avoid costly changes during construction because you are unhappy with design


Plan review process

Step 1

Book a plan review

Send us a copy of your floor plan (and elevations if you have them).

Summarise your concerns.

Step 2

Within two weeks - We send you a CAD floor plan based upon the floor plan provided with improvements that could be made

Additional consultation options at conclusion of service

Book a virtual consultation with Anna Vaughan if you have further questions or want to understand next steps

You have taken the first step, know the questions to ask when reviewing consultant’s fees and managing your project. Download our Architects guide to home construction. Avail March 2026

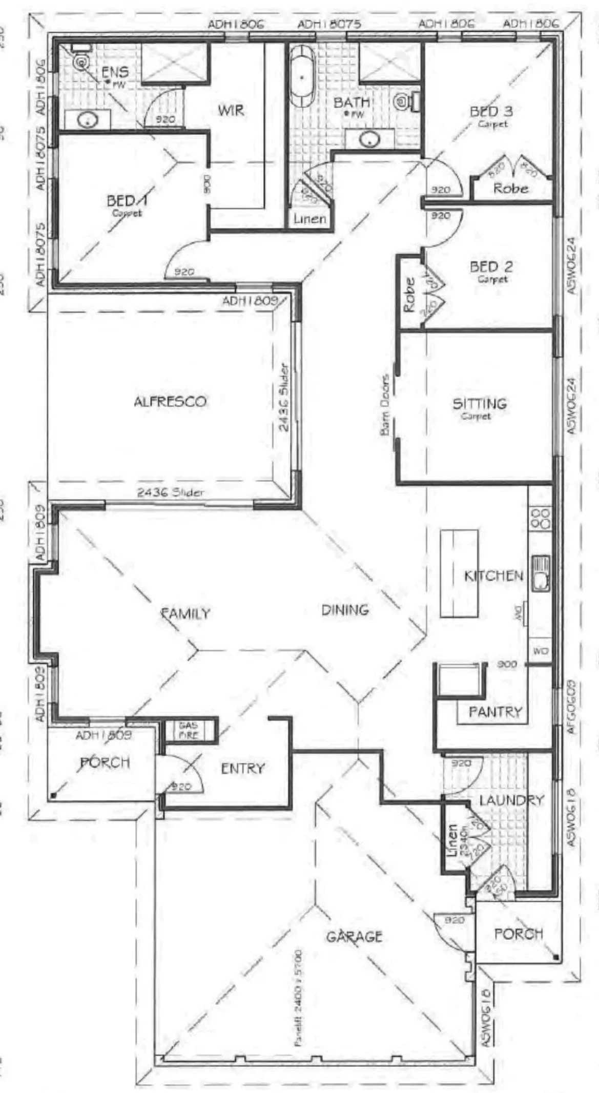
Example 2-3 bedroom floor plan

Existing plan

AVA Plan review

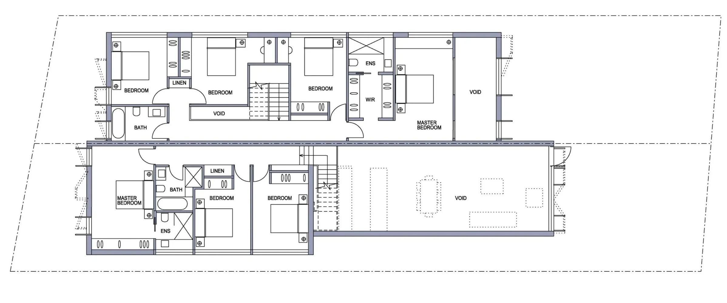
Example 3+ bedroom floor plan

Existing plans

AVA Plan review

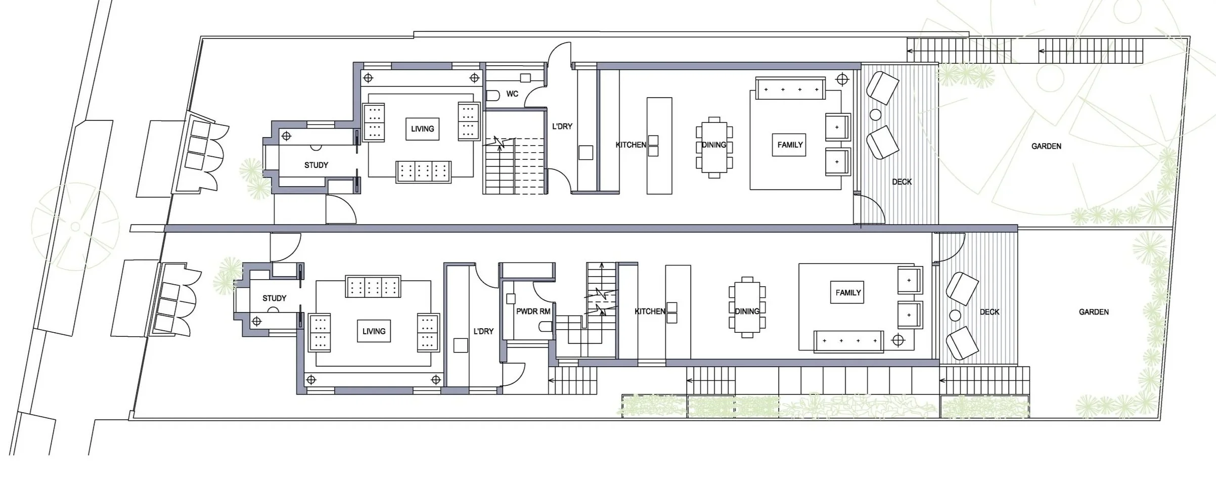
Example Duplex

Existing plans

AVA Plan review

Price structure

2 – 3 Bedroom floor plan $ 3,300

3+ Bedroom house floor plan $ 5,000

Duplex $ 5,000

More detailed DA consent and plan review Contact Us

Optional further virtual consultation with Anna Vaughan

½ hour $ 275

1 hour $ 500

Fees incl GST. AVA Terms and Conditions apply.